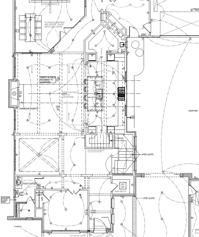
During the genesis of a custom home build, there are numerous elements that are taken into consideration. Some of it gets into the minutia, which is where we will be focusing today. Here is a sneak peek into some of our standard practices as it pertains to the electrical rough in and trim out phases, and how an enormous amount of forethought must be involved for the best outcome.
When it comes to electrical, this procedure and process is one of our most detailed due to the amount of mental analysis required on the front end. Wires are run before insulation and drywall are installed, so the importance of outlining our objectives early on is paramount. Preplanning in this manner will set a builder apart and showcase their attention to detail and meticulous engagement into the project. Working closely with the electricians, HVAC contractors, drywall hangers, and others is important in achieving a luxury result. Here are some of the ways Tyner Construction embraces this philosophy and engages in this “top shelf” practice.
1. Electrical Plan Review on Paper
For every home, we sit down with our clients and closely review the electrical plans. Recessed can and switch placement, specialty outlet locations as well as their height off of the finished floor, and decorative fixture locations are just a few of the details we home in on during this meeting. Will they have motorized window treatments? Are there any cabinets that will need outlets beyond what the NC building code requires? How do the ceiling trusses affect our recessed can light layout in each space? These are just some of the items we work through on paper before the plans are submitted to the electrician for rough-in installation.



2. In The Field Review
Once the can housings and switch boxes etc. are set onsite, we walk the home with our clients to review the locations of all fixtures. Aligning recessed can lights in the ceiling helps to create a seamless and luxurious feel as you navigate your way through the space. Noting the rooms with a specialty wall treatment such as a wood or a wainscot detail helps to place these devices intentionally. In this case, center of a wall board, or above the wainscot, as desired. Reviewing ceiling beam layout to ensure a pool of light is not disrupted as it shines to the floor, and carefully aligning outlets beneath switches and security keypads results in a well thought out finished product during the trim out phase.




3. Device Finishes
Often times the standard white or light ivory switch and outlet colors do not properly complement wall paint or stone cladding, etc. Choosing to upgrade these devices can help to further emphasize luxury and remove the spotlight from these utility pieces. In some areas, outlets in a cabinet face, countertop, or backsplash require even further evaluation and can vary in color from the rest of the home. Sometimes the use of an under-cabinet plug mold can eliminate the electrical eyesore altogether. This application can take your beautiful custom backsplash tile from ruined to remarkable.


In the end, what may seem like an enormous amount of work throughout the project will more than prove worth it when our homeowners take possession. When you experience this level of symmetry and purpose, it becomes clear that the “small” details are what create a masterpiece.
